46
$2,219,900 Sale
Listed 2 hours ago
298 SECOND Road E
· 4
· 2.5
· 12
· 2708
Key Facts
Key facts for 298 SECOND Road E
Property Type
House
Parking
Garage: Yes, 12 parking
MLS #
40775059
Size
2708 sqft
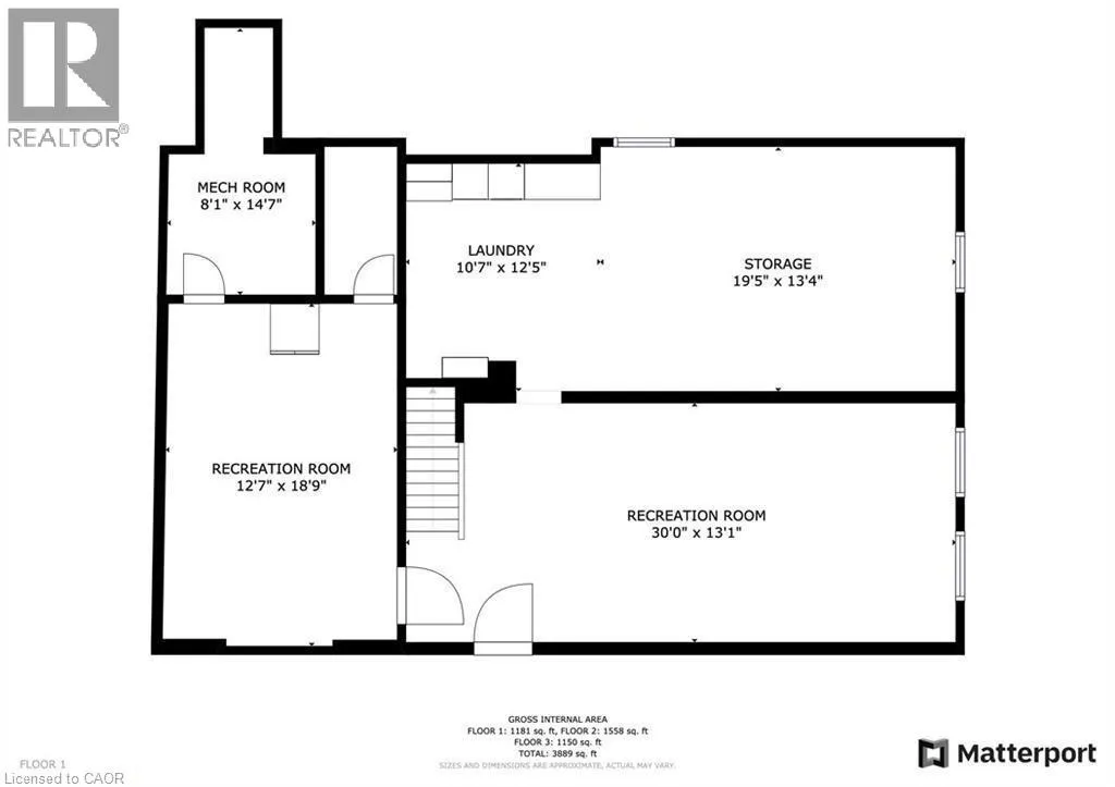
Basement
Partially finished, Full (Partially finished)
Listed on
-
Lot size
-
Tax
-
Days on Market
-
Year Built
-
Maintenance Fee
-
Description
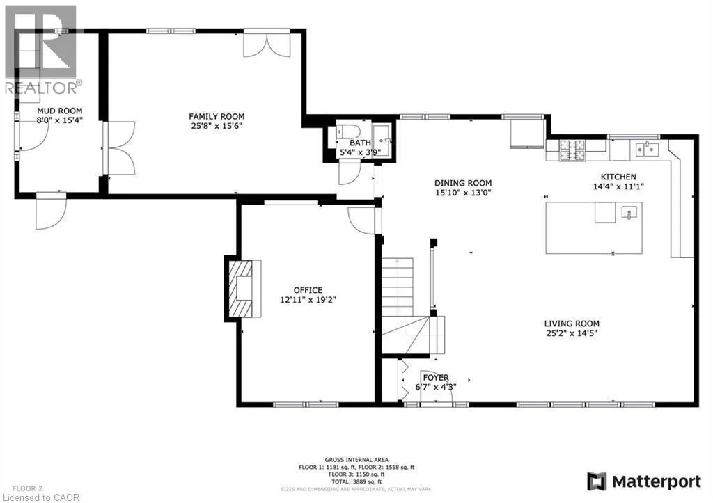
Excellent chance to acquire a 22.2-acre farm featuring a spacious 2 story brick house, perfectly situated on the corner of Mud Street & Second Rd East. The property boasts an impressive 1,938.29 feet of frontage, in a prime location on Stoney Creek Mountain, near upcoming developments. Several upgra...des have been made in the last five years. Includes a double car garage and is conveniently close to all necessities: shopping, schools, and easy access to Red Hill Expressway, LINC, and QEW. (id:10452)
Similar Properties (No results)
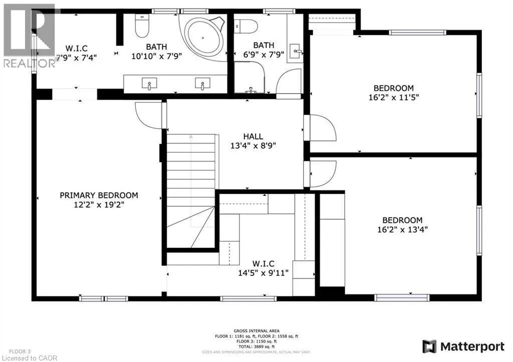
Room Types
2pc Bathroom
-
Measurements not available
0 sqft
3pc Bathroom
-
Measurements not available
0 sqft
4pc Bathroom
-
Measurements not available
0 sqft
Listing courtesy of: RE/MAX Escarpment LEADEX Realty
This REALTOR.ca listing content is owned and licensed by REALTOR® members of The Canadian Real Estate Association.